Verkocht onder voorbehoud:Barwoutswaarder 166A, 3449 HS Woerden - Foto
Verkocht onder voorbehoud
+82

Barwoutswaarder 166A 3449 HS Woerden € 1.135.000,- k.k.

  • Woonhuis
  • 8 kamers
  • 6 slaapkamers
  • 1 badkamer
  • Bouwjaar 2004
  • 2.095 m² perceeloppervlakte
  • 270 m² gebruiksoppervlakte
  • A+++ Energielabel A+++

Beschrijving

Vrij wonen en werken langs de Oude Rijn

Aan de rand van Woerden, op korte fietsafstand van het gezellige centrum, ligt deze verrassend ruime en volledig gerestylde woning met een moderne industriële uitstraling.

Met maar liefst circa 270 m² woonoppervlak, een royale praktijk- of kantoorruimte en een ruim erf met parkeergelegenheid biedt deze woning een unieke combinatie van comfortabel wonen en werken aan huis.

De duurzame, gasloze woning met energielabel A+++ is gelegen op een prachtige plek tussen de landelijke weg, het jaagpad en de Oude Rijn – een omgeving waar rust, ruimte en bereikbaarheid perfect samenkomen.

Situering
Deze woning is gelegen op een mooie locatie aan de rand van Woerden op 12 minuten fietsafstand van het centrum.
Woerden is een gezellige en veelzijdige stad met een centrale ligging in het Groene Hart. Woerden heeft een erg goede en uitgebreide winkelstand, leuke restaurants en terrassen, scholen voor basis- en voortgezet onderwijs en bovendien goede openbaar vervoervoorzieningen inclusief NS-station.
Bovendien is deze woning erg gunstig gelegen t.o.v. de A12, waardoor bijvoorbeeld Amsterdam, Utrecht en Den Haag goed bereikbaar zijn.
En houdt u van wandelen of fietsen dan zit u ook goed: in de omgeving is er een keur aan recreatiemogelijkheden.

Algemeen
De woning is gebouwd in ca. 1965/2004.
Afmeting: 23 m x 8.35 m. De woning heeft een woonoppervlakte van ca. 270 m² en een inhoud van ca. 986 m³.

Gebouwd van steen met spouwmuren, kunststof kozijnen met dubbel glas, de woning is in 2004 geheel gerestyled en heeft een industriële look gekregen. De woning wordt verwarmd en gekoeld middels luchtwarmte units. Optioneel is er een extra voorbereiding met radiatoren boven en vloerverwarming beneden.

Duurzaamheid
- Dubbelglas voorzieningen;
- Hoge isolatiewaarde, energielabel A+++;
- 42 zonnepanelen, capaciteit 17.2 kW.

Nutsvoorzieningen
Elektra 220/380V, (kabel 3 x 80 ampère, gezekerd 3 x 36/63), water, gemeentelijke riolering, KPN aansluiting.

Overige:
- Elektronisch afsluitbaar hek op de inrit;
- Elektronische beveiliging, inbraak-brand;
- Energielabel A+++, Gasloos;
- Laadpaal 22 kW;
- Tuinhuis met terras;
- Buitenberging;

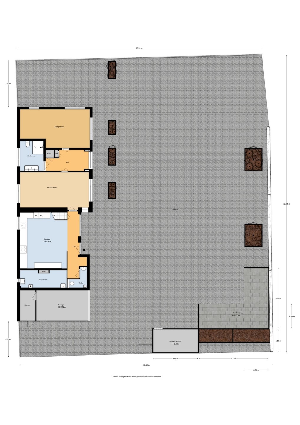
Gelegen tussen een landelijke weg, het jaagpad en de Oude Rijn (de vaarverbinding tussen Utrecht en Leiden).
Daarnaast is er een inpandige garage, een fietsen ruimte achter de garage en een ruim erf met voldoende parkeergelegenheid.

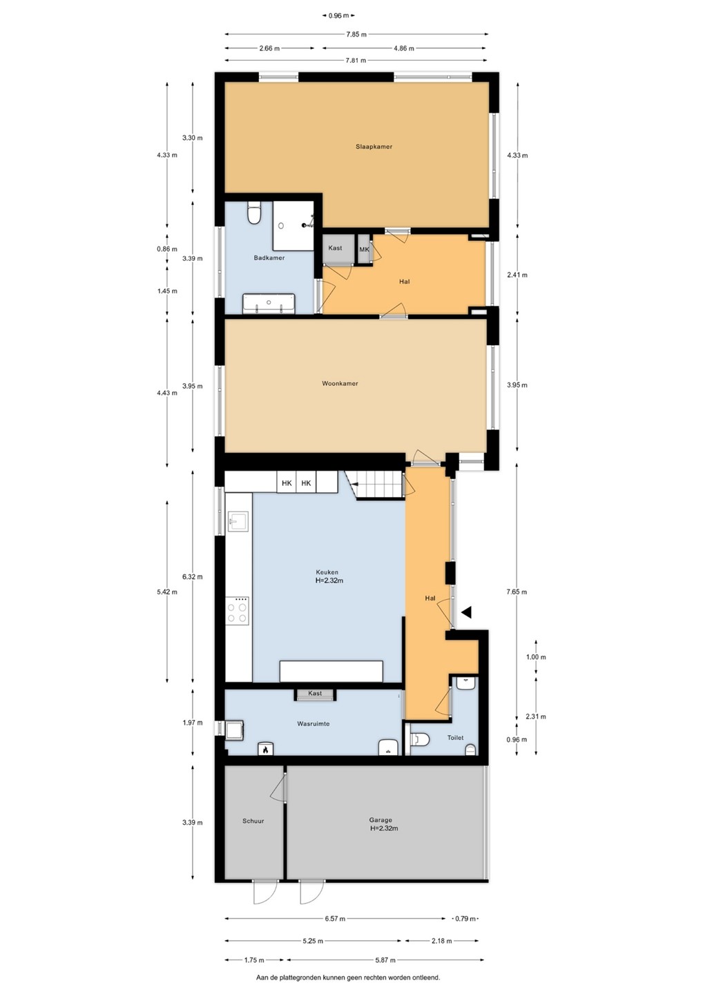
Indeling
Begane grond: Entree, hal, woonkeuken met een uitgebreid keukenblok en een plavuizenvloer met vloerverwarming, garderobe, toilet, bijkeuken, woonkamer van 31 m², hal, meterkast, badkamer, hoofdslaapkamer.

Verdieping: Vijf slaapkamers/ werkkamers, hal met toegang naar het balkon, douche, 50 m² kantoor/praktijkruimte.

Optioneel: Barwoutswaarder 168 (Kavel 2)
Vrijstaand bijgebouw dat dienst kan doen als keuken/cateringvoorziening/gekoelde ruimte etc.

Dit gebouw valt binnen het bestemmingsvlak wonen, waarbij volgens het bestemmingsplan 100 m² aangewend mag worden voor bedrijfsactiviteiten. Dit gebouw voldoet hieraan. Ondergronds heeft het een kelderruimte van 200 m², wat samen met het bovengrondse deel een totale bruikbare oppervlakte van 300 m² oplevert. Oppervlakte perceel: 1.175 m².

Prijsindicatie Kavel 2: € 345.000,-

Kavel 2 wordt alleen verkocht mits kavel 1 is verkocht of gecombineerd met Kavel 1.

Oplevering bij betaling z.s.m.

Vraagprijs is een prijsindicatie

Meer schriftelijke informatie over deze verkoop vindt u in de homeshow van dit object: barwoutswaarder166a. nl. Wachtwoord op te vragen via ons kantoor.

Voor informatie uitwisseling over bovengenoemd object kunt u contact opnemen met de behandeld makelaar Albert de Koning.

Vrijblijvende aanbieding:
Deze informatie, eventuele gesprekken, onderhandelingen etc. zijn allen vrijblijvend. Er is pas sprake van een overeenkomst op het moment dat de door ons kantoor opgestelde koopovereenkomst door beide partijen is (beoordeeld en) ondertekend. Zolang de koopakte niet door beide partijen is ondertekend, is er geen sprake van gebondenheid in welke zin dan ook en hebben partijen het recht zonder kostenvergoeding etc. af te zien van een transactie.

Kaart

Kenmerken

Overdracht

Referentienummer
1506
Vraagprijs
€ 1.135.000,- k.k.
Status
Verkocht onder voorbehoud
Aanvaarding
In overleg
Aangeboden sinds
Vrijdag 6 maart 2026
Laatste wijziging
Vrijdag 20 maart 2026

Bouw

Type object
Woonhuis, eengezinswoning, vrijstaande woning
Soort bouw
Bestaande bouw
Bouwperiode
2004
Type dak
Zadeldak

Oppervlaktes en inhoud

Perceeloppervlakte
2.095 m²
Woonoppervlakte
270 m²
Inhoud
986 m³
Oppervlakte overige inpandige ruimten
26 m²
Oppervlakte externe bergruimte
300 m²
Oppervlakte gebouwgebonden buitenruimte
5 m²

Indeling

Aantal bouwlagen
2
Aantal kamers
8 (waarvan 6 slaapkamers)
Aantal badkamers
1 (en 1 apart toilet)

Locatie

Ligging
Aan rustige weg
Aan vaarwater
Aan water
Buiten bebouwde kom
Dichtbij openbaar vervoer
Nabij school
Nabij snelweg
Open ligging

Tuin

Type
Tuin rondom

Energieverbruik

Energielabel
A+++

Uitrusting

Warm water
Doorstroom boiler
Verwarmingssysteem
Airconditioning
Elektrische verwarming
Vloerverwarming (gedeeltelijk)
Warmtepomp
Badkamervoorzieningen
Douche
Toilet
Wastafelmeubel
Heeft een balkon
Ja
Tuin aanwezig
Ja

Kadastrale gegevens

Kadastrale aanduiding
Woerden F 607
Perceeloppervlakte
920 m²
Omvang
Geheel perceel
Eigendomsituatie
Eigen grond
Kadastrale aanduiding
Woerden F 606
Perceeloppervlakte
1.175 m²
Omvang
Geheel perceel
Eigendomsituatie
Eigen grond

Brochure(s) en overige bijlagen

Brochure Barwoutswaarder 166 A, Woerden.pdf Download
barwoutswaarder166a.pdf Download

Werken bij Koning & Partners?

Bekijk nu onze vacature voor Marketing & Communicatie medewerker!

Naar vacature